Скобы строительные

Скобы строительные применяют в строительстве для скрепления деревянных конструкций и формировании железобетонных конструкций.

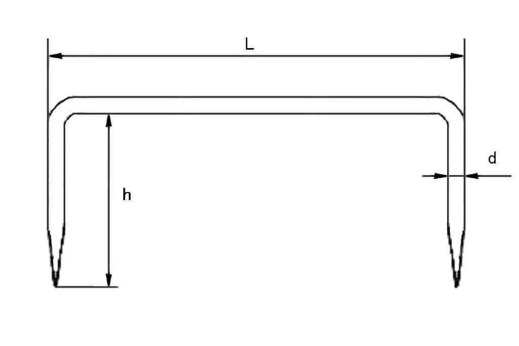
В типоразмере скобы указывается диаметр стального прутка и длина изделия. Длина ножек, которые утапливаются в древесине при монтаже, указана в таблице ниже. Самыми продаваемыми являются скобы строительные диаметром сечения 8 мм и 10 мм. Купить скобы строительные можно как оптом (по 75-100 шт), так и в розницу (по 5 шт).


в упаковке ?
На складе
шт
3 784 р.

Описание

Скобы строительные – одна из разновидностей метизных изделий, которые использовались на Руси столетиями. Их применяют как соединительные элементы при строительстве сооружений из дерева, такие как брусовые дома, бревенчатые бани, хозяйственные постройки различного назначения и т.п. С помощью скоб строительных скрепляются лаги полов, элементы венцов срубов, системы стропил, деревянная опалубка.



строительная скоба в деревянном домостроении

Скобы строительные производят из стального прутка путем горячей ковки. Ножки скобы загибают под 45 градусов и заостряют, а на сгибах крепеж сплющивают, формируя ребро жесткости.

При установке каркаса для фундамента также можно использовать скобы строительные для фиксации арматуры вместо вязальной проволоки. На практике это удобнее и быстрее, а по прочности не уступает.

Преимущества использования скоб строительных

  • выдерживают большие нагрузки: скобы применяют для соединения массивных, габаритных элементов при домостроении
  • гарантируют жесткое соединение деревянных компонентов и дополнительную прочность в узлах на ответственных участках
  • не подвержены перепадам температур, то есть не теряют своих прочностях качеств, «не ведут» узел при низкой или высокой температуре
  • экономия на трудозатратах и времени монтажа (скобы легко проникают в древесину)
пример использования строительной скобы

Скобы строительные - металлические П-образные изделия, которые столетиями внешне ни в чем не изменились. Изделия производят горячей ковкой, причем «ножки» выполняются с четырехгранным поперечным сечением, чтобы входя в древесину, не раскалывать ее. Скобы вбивают в древесину при помощи строительного степлера - пневматического скобозабивателя. Важно производить правильно монтаж во избежание деформации крепежа или повреждения материала. Установка скоб строительных осуществляется под прямым углом к рабочей поверхности.

Строительные скобы являются обязательным строительным крепежом при деревянном строительстве. Ими очень быстро и достаточно надежно фиксируют компоненты деревянных конструкций. Назначение скоб строительных это перевязка элементов, а также страховой пояс строительных конструкций.

Технические характеристики

схема_скоба.jpg

Диаметр
d, мм

Длина
L, мм

Высота
h, мм

Теоретическая
масса
1000 шт/кг

6

150

70

58
200 68
250 76

8

200

60

115
220 123
250 135
270 145
200

70

123
220 130
250 143
260 146
270 150
300 162
320 170
350 182
200

80

131
250 150,1
300 170
350 180

10

200

70

185
220 197
250 216
270 228
300 247
320 259
330 265
350 278
250

80

228
300 259
400 320


...свернуть

Ваша цена на Скобы строительные

8х200 8х200
Изображение короб 100 шт
3 784 р.
уп.
8х220 (кратн. 10 упак) 8х220
Изображение подвес 5 шт
2 395.8 р.
уп.
8х200 (кратн. 10 упак) 8х200
Изображение подвес 5 шт
2 431.1 р.
уп.
8х250 8х250
Изображение короб 100 шт
3 861 р.
уп.
8х250 (кратн. 10 упак) 8х250
Изображение подвес 5 шт
2 478.9 р.
уп.
8х270 (кратн. 10 упак) 8х270
Изображение подвес 5 шт
2 203.6 р.
уп.
8x300 8х300
Изображение короб 100 шт
3 969 р.
уп.
8x300 8х300
Изображение подвес 5 шт
311.7 р.
уп.
10x200 10х200
Изображение короб 75 шт
3 550.5 р.
уп.
10x250 10х250
Изображение короб 75 шт
4 467 р.
уп.
10x250 (кратн. 10 упак) 10х250
Изображение подвес 5 шт
3 770.4 р.
уп.
10х270 (кратн. 10 упак) 10х270
Изображение подвес 5 шт
3 354.1 р.
уп.
10x300 10х300
Изображение короб 75 шт
4 964.3 р.
уп.
10x300 (кратн. 10 упак) 10х300
Изображение подвес 5 шт
4 175.9 р.
уп.

Вопросы / Консультации

Написать комментарий

Вы уже писали комментарий к этому товару

Ничего не найдено

Ответить

Вы уже писали комментарий к этому товару

Задать вопрос

Имя

Ваш вопрос

Введено символов: 0 / 200

Ничего не найдено